400-9029908
wwf@keytex.cn
星期一 至 星期六: 8:30 - 17:30
今日访问人数:
公司介绍
社长致辞
企业理念
公司介绍
企业文化
企业资质
产品介绍
自动门系统
移门系统
中心吊
闭门器
铰链
玻璃门五金
顶级锁具
拉手门吸五金
净化器杀菌产品
FA光电感应器
资讯
公司新闻
新品介绍
行业新闻
资料下载
产品视频
联系我们
语言
中文
English
         小思空气管家
来啦!
产品说明
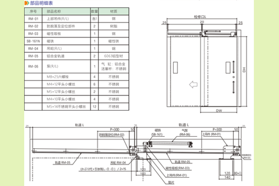
尺寸结构
文档下载
产品特点:
1.具有紧急推开功能:EMD MD SO/HO具有先进的推开功能及系统,设备自带安全停止信号,因此设备在任何情况下都可以应急推开,确保逃生。2.具有应急记忆功能:EMD MD SO/HO具有应急记忆功能,当门应急推开再次合上时,门保持前面的记忆,不需要自动门重新学习,可快速开门或关门。3.标准配置含原装日本进口锁具。4.标准配置含日本进口感应器。
技术参数表:
设备型号
EDM-MD-SO/HO
开闭类型
单向开启/双向开启
门体重量(kg)x扇
(单)150kgx1/(双)120kgx2
安全疏散高度
通道净高最大4米;安全疏散净高最大3.8米
开门/关门速度
100mm/s~500mm/s
电源电源及功率
240V/75W
手动推力
25N
产品安装或使用说明书:
null