400-9029908
wwf@keytex.cn
星期一 至 星期六: 8:30 - 17:30
今日访问人数:
公司介绍
社长致辞
企业理念
公司介绍
企业文化
企业资质
产品介绍
自动门系统
移门系统
中心吊
闭门器
铰链
玻璃门五金
顶级锁具
拉手门吸五金
净化器杀菌产品
FA光电感应器
资讯
公司新闻
新品介绍
行业新闻
资料下载
产品视频
联系我们
语言
中文
English
         小思空气管家
来啦!
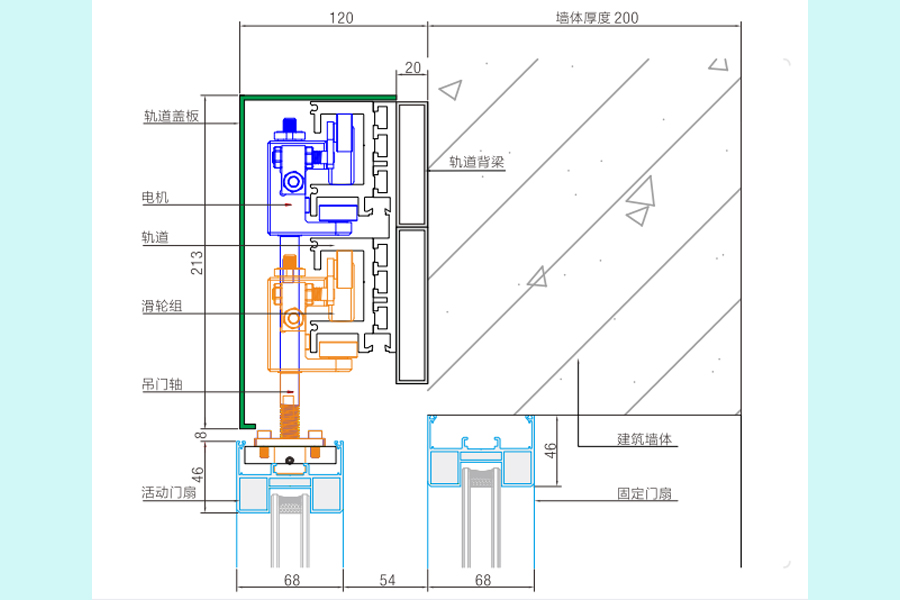
产品说明
尺寸结构
文档下载
产品特点:
自动塞拉门是一种塞和拉两种动作的门。塞拉门分为内塞拉门和外塞拉门两种,门关闭时是由室内或室外塞入口处,使之关闭、密封;门开启时,当门移开门口 一定距离后,能延墙体内测或外侧滑动。自动塞拉门能自动完成塞入和拉出动作,可接收1/Q指令,实现智能家居联动,适合多种门体使用,可拓展至断桥铝门窗系统使用。门体面材多样,可选择玻璃、金属、实木等材料,门体可做成弧形或特殊造型。产品特点:门关闭后与两侧墙体完全齐平。
技术参数表:
设备型号
EDM-SLM
开门速度
100~500mm/s
关门速度
100~400mm/s
停顿时间
0.5~30s
最大单扇重量
120kg~800kg
产品安装或使用说明书:
78